
The urban umbrella
Adrian Price describes The Well, a vibrant new community in the heart of Toronto, designed to connect people with the city's dynamic urban life.


This unique neighbourhood caters to all ages, offering pedestrian friendly walkways, shops, offices, and residences that seamlessly blend together to enhance everyday living.
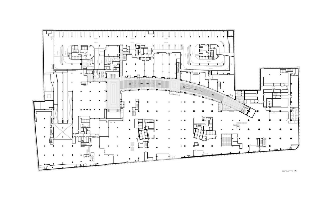
It features seven towers linked by a central retail spine. This spine, forming the podium's first three levels, supports up to 46-storey residential and office towers. The podium's central row is covered by an innovative glazed canopy, open on all sides for natural ventilation and an ‘open to the fresh air’ atmosphere.
Now, more than 85,000 urbanites flow through the development every day to shop, work, eat, and play. The Well has become a destination reimagined for exploration, culinary adventures, and new experiences. It’s a place that exemplifies the concept of the Good City, where thoughtful design amplifies human activity, creating a space greater than the sum of its parts.

At the heart of this success is a commitment to understanding urbanism. BDP’s approach to The Well embraced the complexities of city life, considering economic, social, and environmental factors to create a vibrant, people focused destination. The project’s walkable neighbourhood design encourages people to navigate its connected street networks on foot, reducing reliance on cars and enhancing the community’s liveability.
At first, extending Toronto’s lively and characterful King West area with a major ultra-high-density mixed use scheme posed some big challenges for the masterplan. How do you extend the urban qualities of such a vibrant streetscape into such a development? How do you bring urban placemaking to a climate that swings between +30 and -20 degrees? The standard developer answer was to provide a mall with towers on top, but RioCan and Allied (and the City of Toronto) wanted something different. Their search for inspiration took them across the Atlantic to the UK, where BDP brought a wealth of experience in designing successful urban spaces.



A quick history of UK shopping trends is pertinent. The UK has long faced the challenges of unpredictable weather. In response, Victorian arcades and retractable awnings once protected shoppers from the rain. Department stores emerged to offer a comfortable one stop shopping experience. Post-war urban sprawl, increased car usage, and the rise of shopping malls further altered the retail landscape. While malls became commercially successful, they often drained life from surrounding streets. The 1990s urban renaissance, championed by Sir Richard Rogers and the Urban Task Force, sought to reverse this trend, reintroducing walkable streets and public spaces.
Developers embraced this vision, finding that enclosed malls were expensive to run and difficult to gain planning permission for. Award-winning projects like Liverpool One and New Cathedral Street in Manchester, both designed by BDP, marked a golden age of retail expansion. The covered street concept, offering outdoor shopping with weather protection, gained popularity, exemplified by projects like Victoria Square in Belfast, The Lexicon in Bracknell, Westgate Oxford, and Edinburgh St James.

In 2016, BDP’s expertise proved invaluable when we were appointed to design the retail component of The Well. The vision was clear: bring the character of the King West area to the new development. The result is a vibrant, eclectic streetscape with street focused retail, restaurants, leisure spaces, and a major food market as its anchor. This was never to be a mall; it was always intended to be an urban experience.
We developed a multilevel scheme with walkways tucked into bricky colonnades, finished with chunky timber soffits to evoke the brick-and-beam warehouses of the area. Industrial bridges criss-cross the dramatic curving street, while a 25-metre-high diagrid roof canopy shelters the space. The urban umbrella had come to Toronto.
Constructing the canopy brought its own challenges. Unlike the UK, Toronto experiences heavy snowfall, with snow loads reaching up to 1.5 metres. The roof was designed to withstand these forces, incorporating robust heated gutters to manage snowmelt. Ontario building codes, unfamiliar with such structures, required careful navigation. Fire regulations initially mandated sprinklers, threatening the canopy’s aesthetic integrity. Fortunately, exceptions were made, though operable vents designed for smoke control remain permanently closed.



The Canadian market also lacked experience in fabricating a canopy of this complexity. To address this, the structure was built in the Czech Republic, meticulously transported in sections, and assembled on site. Throughout the process, collaboration with engineers RJC and specialists Josef Gartner was essential to achieving the superb end result.
In essence, the concept is simple – a diagrid with a curved section over the retail row that engages with the main space at 90 degrees, forming the first of four undulating 'hillocks.' The perimeter remains horizontal to ensure residential windows are unobstructed, and structural members are uniformly sized for consistency. The canopy’s defining feature is the Vortex, a sculptural basket weave structure anchoring the northern end of the space. Acting as both an architectural gateway and a support for bridges above, it has become an iconic symbol of The Well. Complementing this bold form, Colin Ball and the BDP lighting design team brought the space to life with dramatic, responsive lighting that shifts with the time of day and the rhythm of the city.
The Well’s urban umbrella has not only transformed the skyline but also the experience of urban living in Toronto. Its public spaces provide a welcoming environment for residents and visitors alike, supporting a diverse and inclusive community. From dawn until dusk, its streets buzz with activity, proving that even the most extreme climates can’t deter a city designed to bring people together. For those of us who designed it, it’s a proud continuation of a legacy of creating memorable, people first places that resonate far beyond their structures.


Related Links
Mass timber midrise
Wayne McMillan describes how to harness design innovations in timber to create healthy, high performance, green buildings.
The regeneration game
Nestled across the Mersey from Liverpool, The Wirral holds a world of potential waiting to be unlocked.

